Via Ree Pentite 39, 94100, Enna
Italia
Partita IVA 01106000860
Copyright 2018 © Sebastiano Fazzi Atelier di Architettura. All Rights Reserved.
Dettagli del progetto
Progetto: Atelier di Architettura
Luogo: Calascibetta (EN)
Anno: 2014
Committente: Privato
Tipologia: Recupero di un sottotetto ai fini abitativi/Progettazione e arredamento d'interni
Foto: © fabiomarinophoto.it
Immagini: © Sebastiano Fazzi Atelier di Architettura

Info
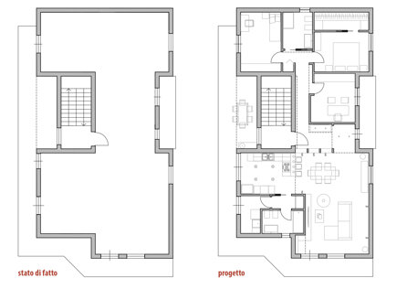
La realizzazione di questa abitazione a Calascibetta, piccolo paese della Sicilia centrale, è stata un’ennesima interessante occasione per costruire nel costruito. L’intervento si è realizzato operando secondo la normativa (Art.18 del L. R. 4/2003). L’obiettivo della legge è quello di contenere il consumo di nuovo territorio e di favorire la messa in opera di interventi tecnologici per il contenimento dei consumi energetici. Il progetto rispetta, inoltre, due vincoli fondamentali al fine di rientrare nelle economie pianificate: il mantenimento delle aperture esistenti e la precedente collocazione dei punti fondamentali per gli impianti idrici. Un altro elemento caratterizzante lo stato di fatto era il tetto a doppia falda che rendeva lo spazio e la sua suddivisione nei differenti ambienti poco unitario. L’intervento è stato guidato dalla volontà di soddisfare le esigenze della committenza: una giovane coppia con una chiara e contemporanea visione dei modi dell’abitare. Il nuovo assetto degli spazi prevede la formazione di due nuclei che stabiliscono differenti gerarchie: una parte più pubblica della casa, dove una zona giorno dall’organizzazione aperta, trova il suo fulcro nella collocazione di un camino sospeso; una parte privata che accoglie le camere da letto ed uno studio. Il disegno e la realizzazione su misura di alcuni elementi di arredo in legno, come la parete filtro tra ingresso e zona giorno o gli elementi contenitori in alto sulla cucina e sotto la tv, hanno permesso ancor più di sottolineare il senso di continuità e di unicum degli spazi richiesto dalla committenza.
The construction of this house in Calascibetta, a small town in central Sicily, was yet another interesting opportunity to build in built. The project was realized thanks to the application of the law Art.18 of L. R. 4/2003. The objective of the law is to limit the consumption of new territory and to facilitate the implementation of technological steps for the containment of energy consumption. The project complies also two fundamental constraints in order to comply economies: the maintenance of the existing openings and the previous location of the key points for the water systems. Another element characterizing the original space was the pitched roof. This type of roof made the space and its subdivision uneven. The project meets the needs of the client: a young couple with a clear vision and contemporary way of living. The new set of spaces provides the formation of two spaces that establish between their different hierarchies: a public part of the house, where a living area open organization, finds its heart in place of a suspended fireplace; a private part that houses the bedrooms and a small study. Customized design and construction of some wooden furniture, such as wall filter between the entrance area and the living area or the storage units in the top of the kitchen and under the TV, has allowed even more to emphasize the sense of continuity and of the unique space required by the client.
Via Ree Pentite 39, 94100, Enna
Italia
Partita IVA 01106000860
Copyright 2018 © Sebastiano Fazzi Atelier di Architettura. All Rights Reserved.